毎日更新2026年03月10日
探す
詳細情報
生野区勝山北1丁目 中古戸建
価格 6,380万円
★LINEでのお問い合わせ★
お友だち追加ボタン!押して →
物件番号[ 12967 ]を入力し、送信♪
・物件の販売状況
・内覧希望
・物件について
ご質問をお気軽にLINEでやりとり♪
★かんたんシェア★
このページをご家族やご友人とシェア♪
お友だち追加ボタン!押して →
物件番号[ 12967 ]を入力し、送信♪
・物件の販売状況
・内覧希望
・物件について
ご質問をお気軽にLINEでやりとり♪
★かんたんシェア★
このページをご家族やご友人とシェア♪
物件情報
| 物件名 | 生野区勝山北1丁目 中古戸建 |
| 所在地 |
大阪市生野区勝山北1丁目
地図
|
| 価格 | 6,380万円 |
| 交通 |
JR大阪環状線 桃谷駅 徒歩3分
|
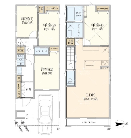
| 間取 | 4LDK |
| 学校区 | 勝山小学校/桃谷中学校 |
| 種目 | 中古戸建 |
| 土地面積 | 82.78 m² (25.04坪) |
| 建物面積 | 100.71 m² (30.46坪) |
| 私道面積 | 10.8m² |
| 建ぺい率 | 80% |
| 容積率 | 300% |
| 建物構造 | 木造 |
| 地目 | 宅地 |
| 土地権利 | 所有権 |
| 用途地域 | 第一種住居地域 |
| 築年月 | 1995/08 |
| 現況 | 居住中 |
| 駐車場 | 有 |
| 接道 |
南 4m(幅員)
|
| ポイント | |
| 周辺施設 | 勝山小学校541m(6分)、桃谷中学校387m(3分)、サンクス 勝山北店326m(4分)、業務スーパー 桃谷店292m(3分)、マツモトキヨシ 桃谷店457m(5分)、くぼたこどもクリニック190m(2分)、生野桃谷郵便局342m(4分)、生野区役所552m(6分) |
更新情報
| 情報更新日 | |
| 更新予定日 | 2026年03月12日 |
ローンシミュレーション
| 返済期間 | 年 |
| 金利 | % |
| 借入金額 | 万円 |
| お支払い例 | 169,164円/月 |
※金利 0.625% 借入総額 6,380万円 借入期間 35年として試算しています。
※ シミュレーションでの結果は、あくまでも目安で、概算になります。
※ 毎回の返済額が開始から終了まで均等となる「元利均等返済」で算出しています。
※ 実際にローン契約をする際は、詳細を金融機関にご確認ください。
※ このシミュレーションは、諸費用(仲介手数料、税金、ローン保証料など)が含まれておりません。
※ 金利は金融機関、ローン種別、借入期間などによって異なります。
※ このシミュレーションは住宅用ローンですので、投資用ローンに関しては当社までお問い合せください。
※ 詳細なローン相談(無料)をご希望の方はメール・お電話で受け付けております。
簡易お問合せ
~送信前に必ずお読み下さい~
弊社は積極的に個人情報保護に取り組んでおります。こちらのフォームにつきましても個人情報としてお取り扱いさせて頂きます。 なお、フォームのご送信をもちまして個人情報のご提供にご同意いただいたものと理解させて頂きます。送り頂いた情報は以下の目的で使用させて頂きます。
- 不動産の売買、賃貸、仲介、管理等の取引に関する契約の履行、及び情報、サービスの提供。
- 上記1の利用目的の達成に必要な範囲での、個人情報の第三者への提供。
- 当社が取り扱う商品に関する契約の履行、情報、サービスの提供。
- 上記1、3の商品・情報・サービス提供のための郵便物、電話、電子メール等による営業活動、及びアンケートのお願い等のマーケティング活動。顧客動向分析または商品開発等の調査分析。
- 情報、サービスの提供は、ご本人からの申出がありましたら取り止めさせていただきます。
送信頂きました個人情報のお問い合わせまたは開示・訂正・削除のご請求は下記まで宜しくお願い致します。
センチュリー21 リブプライム不動産
06-6736-5184併せてサイト利用規約もご確認ください。
