令和07年11月24日 16時00分 更新
次回更新予定日:令和07年11月25日
センチュリー21 リブプライム不動産
新着売戸建物件情報
会員公開物件数221件  全物件数313件
お気軽にお問合せ下さい♪
06-6736-5184
一般公開物件数92件  会員公開物件数221件
中古戸建 中古戸建 中古戸建 中古戸建
1,480万円 1,700万円 2,970万円 3,100万円
寺田町駅 徒歩10分 構造:木造土地面積:44.37平米 ( 13.42坪 ) 建物面積:55.15平米 ( 16.68坪 )  桃谷駅 徒歩11分 構造:木造土地面積:42.8平米 ( 12.94坪 ) 建物面積:44.29平米 ( 13.39坪 )  北巽駅 徒歩12分 構造:鉄骨造土地面積:67.64平米 ( 20.46坪 ) 建物面積:144.57平米 ( 43.73坪 )  鶴橋駅 徒歩5分 構造:木造土地面積:63.2平米 ( 19.11坪 ) 建物面積:58.74平米 ( 17.76坪 ) 
中古戸建 ●南向き現況更地、陽当たりと開放感が魅力 ●家族が 中古戸建  
4,680万円 4,780万円 6,680万円  
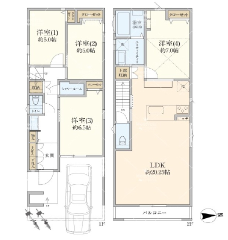
東部市場前駅 徒歩16分 構造:木造土地面積:106平米 ( 32.06坪 ) 建物面積:99平米 ( 29.94坪 )  北巽駅 徒歩20分 構造:木造土地面積:106.1平米 ( 32.09坪 ) 建物面積:99.63平米 ( 30.13坪 )  南巽駅 徒歩13分 構造:木造+鉄骨造土地面積:163.56平米 ( 49.47坪 ) 建物面積:197.92平米 ( 59.87坪 )   
 




センチュリー21 リブプライム不動産